Asunto Oy Tampereen Takojan Portti

Rakentamisen aikajana

Suunnitteilla

Varattavissa

Myynnissä ja rakenteilla

Muuttovalmis

Esittely keskiviikkona 29.4. klo 17-18!

Tervetuloa tutustumaan Takojan Portin kotien suunnitelmiin keskiviikkona klo 17.00-18.00.

 

Paikka: Cafe Linkosuo, Sarvijaakonkatu 5 B, Tampere.

 

Tule juttelemaan kanssamme asumisen tarpeista – autamme mielellämme löytämään juuri sinulle sopivan kodin.

 

Nähdään esittelyssä!

Takojan Portti – portti parhaaseen Tampereeseen

Tervetuloa Tampereen Kalevaan, jossa urbaani elämä ja rauhallinen asuminen kohtaavat luontevasti. Takojankadulle sijoittuva Asunto Oy Tampereen Takojan Portti on moderni kerrostalokohde, joka tarjoaa laadukkaita koteja sujuvan arjen ja erinomaisten yhteyksien äärellä.

 

Takojan Porttiin on suunnitteilla noin 47 kotia tehokkaista yksiöistä tilaviin perheasuntoihin. Jokaisessa asunnossa on lasitettu parveke, ja valtaosa kodeista on valoisia kulmahuoneistoja. Huolella suunnitellut pohjaratkaisut, moderni varustelutaso ja energiatehokas A2018 -luokka tekevät asumisesta viihtyisää ja kustannustehokasta.

 

Kohde muodostaa osan viihtyisää korttelikokonaisuutta, jossa korostuvat vehreät piha-alueet, yhteisöllisyys ja kestävät ratkaisut. Asukkaiden käyttöön on tulossa muun muassa saunaosasto, pesula sekä arkea helpottavia yksityiskohtia, kuten sisäänkäynnin yhteyteen pesupiste lemmikeille ja ulkoiluvarusteille. Esteettömät kulkureitit ja tilava hissi varmistavat sujuvan liikkumisen kaikille.

 

Kalevan erinomainen sijainti tuo palvelut, ulkoilumahdollisuudet ja liikenneyhteydet lähelle. Ratikka vie nopeasti keskustaan, ja arjen tärkeät palvelut, koulut sekä harrastusmahdollisuudet löytyvät kävely- tai pyörämatkan päästä.

Luonnoskuva Tampereen Takojan Portin ylimmänkerroksen olohuoneesta
Luonnoskuva

Tutustu suunnitelmiin ja varaa oma kotisi ennakkoon

Asunto Oy Tampereen Takojan Portti on nyt esimarkkinoinnissa. Asuntopohjat, hinnat ja vastikkeet ovat alustavia ja tarkentuvat suunnittelun edetessä.

 

Tutustu suunnitelmiin ja varaa sinua kiinnostava koti jo tässä vaiheessa. Varaus on sitoumukseton, mutta antaa sinulle etusijan valitsemaasi asuntoon myynnin alkaessa. Mikäli toivomasi koti on jo varattu, voit liittyä jonotuslistalle ja jäädä odottamaan sen mahdollista vapautumista.

 

Alustavan varausvaiheen jälkeen etenemme ennakkovaraussopimuksiin arviolta loppukesästä 2026. Kohteen myynnin ja rakentamisen on suunniteltu käynnistyvän vuoden 2026–2027 vaihteessa. Huom. Eteneminen myynti- ja rakentamisevaiheeseen vaatii tietyn varausasteen täyttymistä.

Luonnoskuvanäkymä Tampereen Takojan Portin asunnon olohuoneen parvekkeesta ja isoista ikkunoista

Valoa, avaruutta ja omaa ulkotilaa

Takojan Portin suuret ikkunat täyttävät kodit luonnonvalolla ja tekevät tiloista avaria sekä viihtyisiä ympäri vuoden. Laajat ikkunapinnat avaavat näkymiä ympäröivään Tampereen kaupunkimaisemaan ja tuovat valon osaksi arkea.

 

Jokaisessa kodissa on lisäksi reilun kokoinen, lasitettu parveke, joka toimii kuin ylimääräinen huone – paikka aamukahville, rentoutumiselle ja vuodenaikojen vaihtelun seuraamiseen. Yhdessä suuret ikkunat ja tilavat parvekkeet luovat asumiseen poikkeuksellista väljyyttä ja laatua.

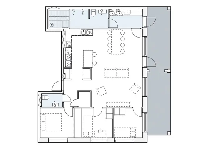
Kuva Tampereen Takojan Portin asuntopohjasta A30

Tilaa elää ja hengittää

Takojan Portin tilavat kodit on suunniteltu sujuvaa arkea ja yhdessäoloa varten. Avarat oleskelutilat, selkeät pohjaratkaisut ja reilut huonekoot luovat kodin, jossa on helppo viihtyä – niin arjessa kuin juhlassakin.

 

Keittiö, ruokailu ja olohuone muodostavat yhtenäisen, kutsuvan kokonaisuuden, jossa tilaa riittää niin perheelle kuin vieraille. Fiksusti sijoitetut makuuhuoneet ja säilytystilat tuovat arkeen toimivuutta ja mukavuutta.

Luonnoskuvanäkymä Tampereen Takojan Portin sisäänkäynnistä ja kuvitteelisesta maalämpöjärjestelmästä

Asumisen mukavuutta modernilla talotekniikalla

Takojan Portissa asumismukavuus syntyy nykyaikaisista ratkaisuista. Energiatehokas maalämpö tarjoaa tasaisen ja miellyttävän lämmön ympäri vuoden, samalla pitäen asumiskustannukset hallinnassa.

 

Asunnoissa on vesikiertoinen lattialämmitys, joka vapauttaa seinäpinta-alaa ja tekee sisustamisesta joustavampaa – lämpö tuntuu juuri siellä missä sen kuuluukin. Lisäksi ilmalämpöpumppuvaraus tuo mahdollisuuden viilennykseen kesäkuumilla ja lisää asumismukavuutta entisestään.

Taloyhtiön sijainti kartalla

Taloyhtiö lyhyesti

  • Suunnitteilla
  • Arvioitu valmistuminen 11/2027
  • Kerrostalo
  • Takojanaukio 2 33540 Tampere
  • Vuokratontti
  • 1-4 huonetta
  • 27,0-100,5 m2

Tervetuloa esivaraamaan uusi kotisi!

 

Asiakasrekisterissä olevana asiakkaana sinulla on etu varata oma kotisi ennen muita. Syötä sähköpostissa tullut salasana alla olevaan kenttään, niin pääset varaamaan kotisi ensimmäisten joukossa.

 

Salasana toimitetaan asiakasrekisterillemme torstaina 16.4.2026. Mikäli haluat liittyä asiakasrekisteriimme, ota yhteyttä myyntiimme puhelimitse puh. 0800 97 300 (maksuton) tai sähköpostiin asuntomyynti.tampere@hartela.fi.

 

Varaamaan pääset keskiviikkona 22.4.2026 klo 10.00 alkaen.

Tästä alkaa yhteinen matkamme kohti uutta kotia!

 

Huom! Mikäli asuntosivu ei aukene salasanalla, kokeille päivittää sivu tai avaa selain uudelleen.

Kuvat ja videot

Luonnoskuva Tampereen Takojan Portin sisäänkäynnistä Ensivaikutelma, joka tuntuu kodilta – Takojan Portin tyylikäs sisäänkäynti. Luonnoskuva.
Luonnoskuva Tampereen Takojan Portin asunnon olohuoneesta Kalevan kattojen yläpuolella – olohuone, jossa maisema on osa kotia. Luonnoskuva.
Luonnoskuva Tampereen Takojan Portin keittiöstä Selkeälinjainen, moderni keittiö – suunniteltu sujuvaan arkeen. Luonnoskuva.

KATSO KAIKKI KUVAT

Vastasimme Kalevan asunnonetsijöiden toiveisiin ja loimme kerrostalon avoimilla pohjaratkaisuilla, isoilla ikkunoilla ja monilla muilla asumismukavuuksilla.

Nyt haluamme kuulla sinun mielipiteesi – mitä mieltä sinä olet? Vastaa kyselyyn!

Meillä kaikilla on oma tyyli - mikä on sinun?

Hartela Interior tyylien detaljikuvat

Hartelan sisustustyylit

Kodissa tärkeintä on, että se näyttää ja tuntuu omalta. Tampereen Takojan Portin asunnon ostajana voit suunnitella asunnosta mieleisesi valitsemalla materiaalit Hartela Interiorin laajasta materiaalivalikoimasta. Valikoimaan voit tutustua sisustusmateriaaliesitteestä tai Hartelan asuntomyynnissä yhtiön ennakkomarkkinoinnin alkaessa.

Mitä aikaisemmassa vaiheessa rakentamista varaat asunnon, sitä varmemmin pääset vaikuttamaan kotisi sisustusratkaisuihin ja tekemään kodista tyylisi mukaisen.

Lue lisää Hartela Interior sisustustyyleistä
Valokuvanäkymä Tampereen Kalevan alueesta. Etualalla Kalevan kirkko.

Kaleva - Sujuva arki lähellä keskustaa

Kalevassa on yhdistelmä modernia kaupunkielämää ja rauhallista asumisen tunnelmaa. Alueen vetovoima piilee sen monipuolisessa tarjonnassa – erinomaisessa sijainnissa, hyvien palveluiden äärellä ja luonnon lähellä. Kaleva on alue, joka tarjoaa rauhallisen ja viihtyisän ympäristön, jossa on hyvä elää ja asua.

Lue lisää alueesta

Ota meihin yhteyttä

Kiinnostuitko Asunto Oy Tampereen Takojan Portista?

JÄTÄ YHTEYSTIEDOT

Muita sinua kiinnostavia taloyhtiöitä

Sivuilla esitetyt visualisointikuvat ovat luonnoskuvia kohteista, eivät kuvauksia yksityiskohdista tai väreistä.

Visualiointikuvissa voi esiintyä myös lisähintaisina muutostöinä tilattavia materiaaleja.